Skip to main content
Main navigation
Portfolio
Büro
Kontakt
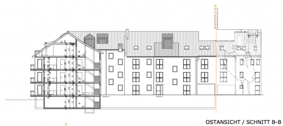
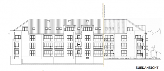
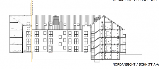
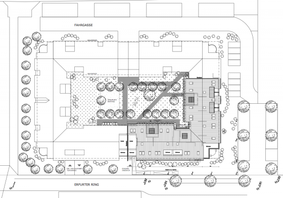
Mehrfamilienhaus mit 32 Wohneinheiten
Erfurter Ring
Leistungsphase 1-4
Alle Projekte